Skip to content
361-772-7891
[email protected]
Facebook
Google
Home
New Homes
Single Wides
Double Wides
Pre Owned Homes
MH Parts Inquiry
MH Services
Blog
About Us
Contact Us
Home
New Homes
Single Wides
Double Wides
Pre Owned Homes
MH Parts Inquiry
MH Services
Blog
About Us
Contact Us
Book Appiontment
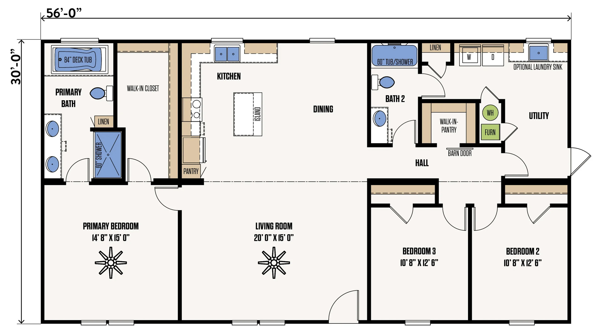
The Red River
32x56
3 Bed
2 Bath
1680 SQFT